Ansprechende Immobilien

für individuelle Wünsche

MARTINSRIED: BÜRO MIT FLEXIBLEN FLÄCHEN AM BIOTECH-STANDORT!

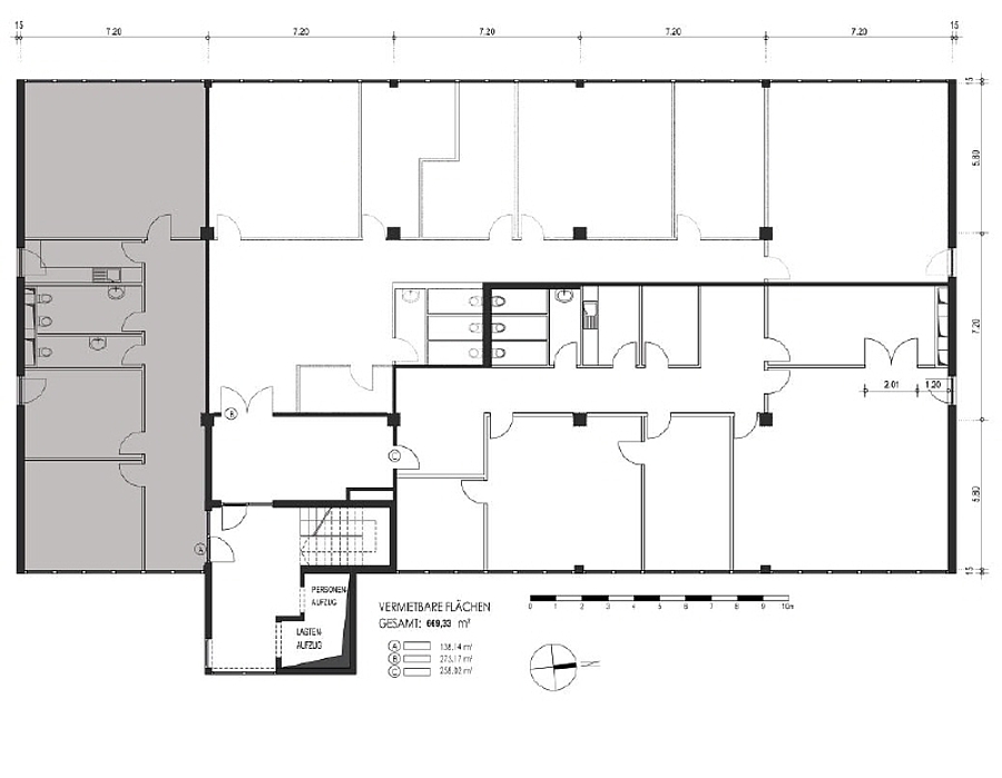
Herzlich Willkommen Herzlich Willkommen Repräsentanz mit Lagevorteil Repräsentanz mit Lagevorteil High Tech Fassade! High Tech Fassade! In bester Nachbarschaft! In bester Nachbarschaft! Grundriss 1 OG Grundriss 1 OG
Objektbeschreibung:
DIMENSIONEN DIE BEGEISTERN

In bester Orts-räumlicher Lage präsentiert sich das beeindruckende Bürohaus mit futuristischer, witterungsbeständiger, eloxierter Aluminiumfassade. Im kubischen Stil errichtet, nimmt das Bauwerk drei erdgeschossige Outlet-Factories und in den darüber befindlichen drei Etagen sechs Büros mit unterschiedlichen Flächen auf. Angedient werden die jeweiligen Einheiten via Treppenhaus, Personen- oder Lastenaufzug, welche bis in die Ebene des Untergeschosses mit Tiefgarage reichen.
Das offerierte Büro weist einen sehr guten Pflege- und Erhaltungszustand auf und wäre hinsichtlich Raum- und Flächengestaltung flexibel. Die multifunktionale Immobilie lässt verschiedene Optionen wie Büro, Labor oder Produktion zu. Das Raumprogramm erfüllt gehobene Bedürfnisse in Sachen Repräsentanz, moderner Arbeitsumgebung und Funktionalität. Gerne erfahren wir Ihre spezifischen Wünsche und Vorstellungen und laden Sie zu einer umfangreichen Objektpräsentation ein.

Ziel ist eine langfristige Partnerschaft zwischen Mieter und Vermieter mit einer Immobilie, die Ihren Geschäftsgegenstand perfekt unterstützt.

Weitere interessante Gewerbeflächen am gleichen Standort finden sie hier:
https://www.see-immo.de/aktuelle-immobilienangebote/martinsried-flexible-verkaufsflaeche-in-bester-nacharschaft.html
https://www.see-immo.de/aktuelle-immobilienangebote/martinsried-buero-mit-flexiblen-flaechen-am-biotech-standort-1.html
Lage:
WIRTSCHAFTSSTANDORT MARTINSRIED
Die Verknüpfung von Wissenschaft, Wirtschaft und Gesellschaft wird immer wichtiger, ganz besonders für Unternehmen der Bio-Tech-Branche, welche sich in synergetischer Konzentration in und um Martinsried präsent sind. Kurze Wege und die Möglichkeit persönlicher Interaktionen und schnell und unkompliziert zu kooperieren, machten den Wissenschaftscampus Martinsried zu einem der größten Zentren Europas, in dem wissenschaftliche Grundlagenforschung, Lehre, klinische Forschung und Technologieinnovation zusammengeführt sind.

Auf dem Campus befinden sich in direkter Nachbarschaft Institute der Ludwig-Maximilians-Universität (LMU) München, das Max-Planck-Institut für Biochemie, das Max-Planck-Institut für Neurobiologie und das Innovations- und Gründerzentrum Biotechnologie (IZB). So entstehen herausragende Bedingungen für Studierende und Wissenschaftler, ebenso wie eine wirtschaftliche Stärkung der Region durch regelmäßige Ausgründungen aus der Grundlagenforschung.
Ausstattung:
Der Zustand der Liegenschaft ist gepflegt und bezugsfertig. Im Einzelnen sind folgende Ausstattungsmerkmale erwähnenswert:

- Multifunktionales Raumprogramm
- Personen- und Lastenaufzug
- Netzwerkverkabelung
- Kompaktküche
- Tiefgarage
- Breitbandinternetanschluss
- Großer umlaufender Parkplatz
- Provitabler Wirtschaftsstandort

Kontaktperson

Nico Herrmann

+49(8157)996674

herrmann(at)see-immo.de

08157 99 66 70

Preise

Nettokaltmiete:
1.656,00 €
Nebenkosten:
250,00 €
m²-Miete:
12,00 € pro m²

Details

Objektnr. extern:
4822
Stand vom:
26.08.2025
Nutzungsart:
Gewerbe
Vermarktungsart:
Miete/Pacht
Objektart:
Büro/Praxen
Ort:
82152 Planegg
Bürofläche:
138,00 m²
Verkaufsfläche teilbar:
von 0,00 m²
Grundstücksfläche:
k.A
Gesamtfläche:
138,00 m²
Etage:
1
Anzahl Stellplätze:
4
Zustand:
Gepflegt
Ausstattung:
Fernwärme Personenaufzug Fernwärme Stellplatz: Freiplatz

Energiepass

Art des Energieausweises:
Verbrauchsausweis
Gültig bis:
28.07.2030
Baujahr:
1987
Befeuerung:
Fernwärme
Energieverbrauchkennwert:
51,3 kWh/(m²*a)

Erkunden Sie das Umfeld der Immobilie