Ansprechende Immobilien

für individuelle Wünsche

STARNBERG: KOMPAKTES EINFAMILIENHAUS IN ATTRAKTIVER ORTSRANDLAGE

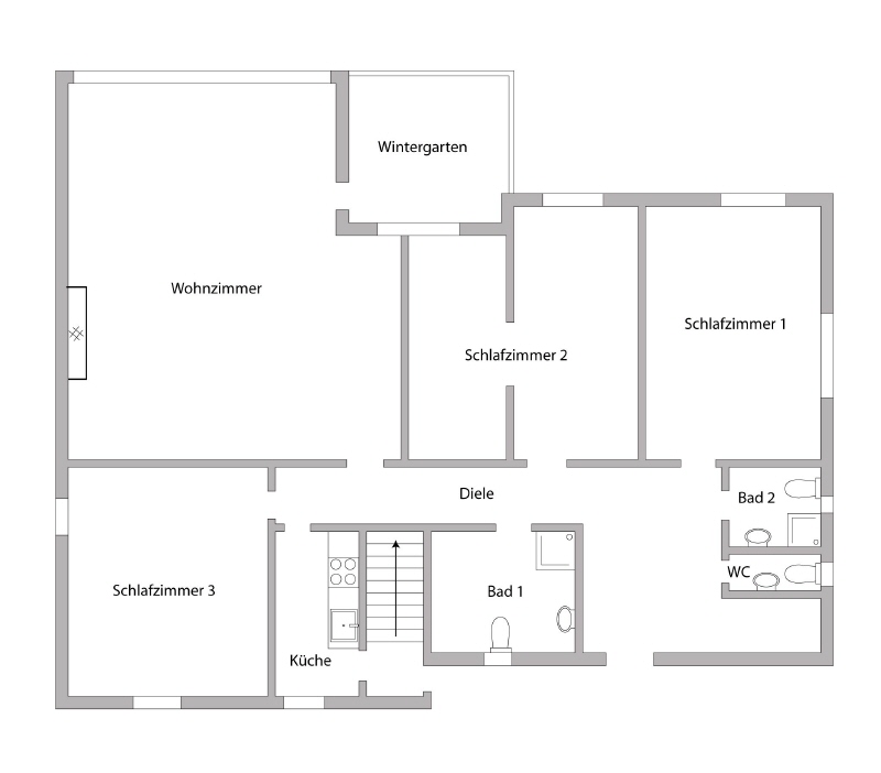
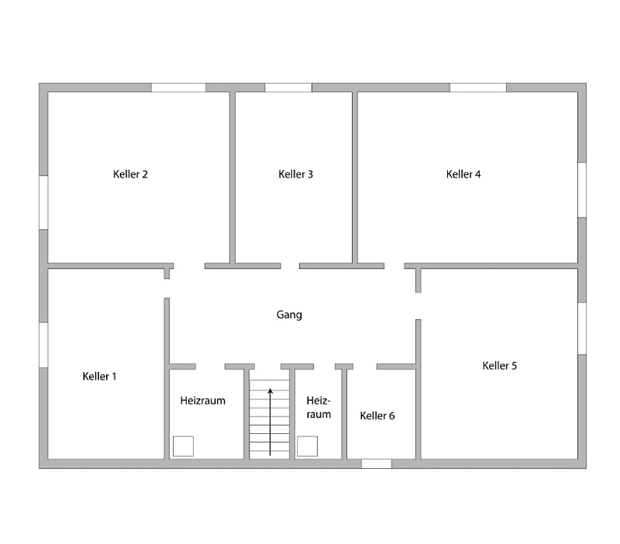
Herzlich Willkommen! Herzlich Willkommen! Ein lohnendes Sanierungsobjekt Ein lohnendes Sanierungsobjekt In idyllischer Waldrandlage In idyllischer Waldrandlage Rückwärtiger Garten Rückwärtiger Garten Grundriss Erdgeschoss Grundriss Erdgeschoss Grundriss Untergeschoss Grundriss Untergeschoss
Objektbeschreibung:
Erstmalig und im Alleinauftrag offerieren wir dieses bungalowartige Einfamilienhaus in attraktiver, naturnaher Randlage von Starnberg-Söcking.

Das unterkellerte Einfamilienhaus weist eine Wohnfläche von ca. 120 m² auf und bildet eine solide Basis für eine substanzielle und energetische Sanierung. Das erdgeschossige Raumprogramm verfügt über eine Eingangsdiele mit Garderobe und Gäste-WC, eine Küche mit angelehntem Abgang in das Untergeschoss, zwei Schlafzimmer und ein großes, lichtdurchflutetes Wohnzimmer mit offenem Kamin und Wintergarten, sowie zwei Badezimmer. Da das aufstehende Haus preislich nicht angesetzt wurde, wäre beim aufgerufenen Grundstückspreis auch eine Freilegung mit anschließender Errichtung eines neu gebauten Hauses denkbar. Das gegenständliche Flurstück befindet sich nicht im Geltungsbereich eines Bebauungsplanes und darf somit gemäß § 34 des Baugesetzbuches bebaut werden. Zur Planungssicherheit für den, bzw. die künftigen Bauherren wurde bereits ein Antrag auf Erteilung eines Vorbescheides gestellt, welcher bis zum 17.12.2027 die Bebauung mit folgenden Parametern rechtssicher ermöglicht:

- Errichtung eines Gebäudes mit einer Grundfläche von 215 m²
- Erzielbare Wohnfläche von mindestens ca. 365 m²
- Zulässige Wandhöhe 5,77 m
- Zulässige Firsthöhe 7,73 m
- Zulässige Höhenentwicklung in Form von Untergeschoss, Erdgeschoss, Obergeschoss u. offenem Dachgeschoss, bzw. Kriechspeicher

Gerne stehen wir Ihnen mit einem bewährten Architekten zur verbindlichen Abklärung all Ihre planerischen und baulichen Vorstellungen zur Verfügung. Auf Ihre Kontaktaufnahme freuen wir uns und laden Sie zu einer umfassenden Besichtigung und Vorstellung der angebotenen Immobilie ein.
Lage:
DER STARNBERGER SEE
Es ist eine der beliebtesten Regionen des Landes - einzigartig das attraktive Freizeitangebot am See mit den beeindruckenden Bergen des Alpenhauptkamms im Süden. Keine andere Gegend in Bayern besitzt so viele alte Villen und Schlösschen. Interessant ist auch die Mischung von Landschaft, Kultur und Lebensstil. Die hügelige, weißblaue Idylle ist mancherorts so schön, dass sie fast schon kitschig wirkt. Der Starnberger See hat gesellschaftlich fast alles zu bieten: Bayerische Traditionen, Fischerstechen, Edelrestaurants, In-Lokale... kurzum, der Starnberger See ist (auch bei der Prominenz) "en vogue" und bietet gleichzeitig einen herrlichen Schuss urbayerischer Gemütlichkeit. Hier ist man Mensch unter den Bewohnern, die den Slogan "Leben, wo andere Urlaub machen", fest verinnerlicht haben. Man trifft sich beim Einkaufen am Ort, im italienischen Eiscafé, oder zum Baden am See. Überhaupt der See: Er verfeinert, abgesehen von den vielen Freizeitmöglichkeiten auch das kulinarische Leben der Menschen. Unvergleichlich gute Renken, vor der Haustüre gefangen sind ein herrlicher Genuss, entweder in den zahlreichen Fischrestaurants, oder am heimischen Tisch. Sportbegeisterte Menschen haben die Wahl zwischen 14 Golfplätzen in der Region, gepflegten Radwegen, gehen zum Schwimmen, Segeln oder zum beruhigenden Stand-Up-Paddeling.
STARNBERG-SÖCKING
Söcking ist ein familienfreundlicher Stadtteil von Starnberg am gleichnamigen See, welcher sich durch eine gute Infrastruktur mit breitgefächerten Einkaufsmöglichkeiten und einen eng getakteten öffentlichen Nahverkehr auszeichnet. Die Umgehungsstraße zur BAB 96 sorgt für eine schnelle Erreichbarkeit der Landeshauptstadt München.
Ausstattung:
Der Ausstattungs- und Erhaltungszustand des charmanten Hauses ist baujahrbedingt solide. Im Einzelnen sind folgende Ausstattungsmerkmale erwähnenswert:

- Wohnzimmer mit offenem Kamin
- Wintergarten
- Zwei Badezimmer
- Großer gepflegter Garten
- Attraktive, naturnahe Ortsrandlage
- Einzelgarage
- Aufstockung möglich
- Genehmigter Bauvorbescheid für die Errichtung eines großen, neuen Einfamilien- oder Doppelhauses

Kontaktperson

Florian Raffelt

+49(8157) 996677

raffelt(at)see-immo.de

08157 99 66 70

Preise

Kaufpreis:
1.798.000,00 €
Provision:
3,00 % inkl. 19 % MwSt.

Details

Objektnr. extern:
5256
Stand vom:
27.10.2025
Nutzungsart:
Wohnen
Vermarktungsart:
Kauf
Objektart:
Haus (Bungalow)
Ort:
82319 Starnberg-Söcking
Vermietet:
Nein
Fläche:
120,00 m²
Verkaufsfläche teilbar:
von 0,00 m²
Grundstücksfläche:
1.059,00 m²
Anzahl Zimmer:
4
Anzahl Schlafzimmer:
3.00
Anzahl Badezimmer:
2.00
Ausstattung:
Oel Zentralheizung Unterkellert/Keller

Energiepass

Art des Energieausweises:
Bedarfsausweis
Gültig bis:
31.07.2035
Baujahr:
1961
Befeuerung:
Oel
Endenergiebedarf:
486,6 kWh/(m²*a)

Erkunden Sie das Umfeld der Immobilie